Запасные части ЧТЗ Запасные части ЧТЗ
Балашиха
Например:
Актобе
Алдан
или
Выбрать автоматически
Актобе
Алдан
Алматы
Алчевск
Архангельск
Астана
Астрахань
Атырау
Баку
Балашиха
Барнаул
Белгород
Бердянск
Бишкек
Владивосток
Владикавказ
Воркута
Воронеж
Горловка
Грозный
Донецк
Екатеринбург
Иваново
Ижевск
Иркутск
Казань
Калининград
Каменск-Уральский
Караганда
Каховка
Кемерово
Киров
Комсомольск-на-Амуре
Костанай
Краснодар
Красноярск
Красный луч
Ленск
Луганск
Магадан
Магнитогорск
Макеевка
Махачкала
Мелитополь
Минск
Мирный (Якутия)
Москва
Мурманск
Нерюнгри
Нижневартовск
Нижний Новгород
Нижний Тагил
Новая каховка
Новокузнецк
Новосибирск
Новый Уренгой
Норильск
Ноябрьск
Нур-Султан
Омск
Оренбург
Ош
Павлодар
Пермь
Петрозаводск
Петропавловск
Петропавловск-Камчатский
Псков
Ростов-на-Дону
Салехард
Самара
Санкт-Петербург
Саратов
Севастополь
Семей
Симферополь
Сочи
Ставрополь
Сургут
Сыктывкар
Тараз
Ташкент
Токмак
Томск
Тында
Тюмень
Ульяновск
Усинск
Усть-Каменогорск
Уфа
Хабаровск
Ханты-Мансийск
Херсон
Челябинск
Чита
Шымкент
Экибастуз
Энергодар
Южно-Сахалинск
Якутск
Ваш город
Балашиха
Войти
Запасные части к тракторам на одном сайте
+7 (932) 303-00-10
+7 (932) 303-00-10
г. Балашиха, Объездное шоссе, вл4А
Пн-Пт: 9:30-18:30 Cб-Вс: Выходной
Отправить заявку


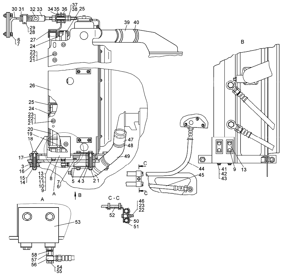
Установка радиаторов (для трактора с «прямым» потоком) на Т10М / Б10М


/
с НДС 20%
Описание
Установка радиаторов (для трактора Т10М с «прямым» потоком)
#Номер запчастиНаименование деталиКол-во в сборке
124-08-177СПКран1
224-08-189СПНакладка1
364-08-389Втулка4
4700-40-4923Амортизатор2
524-08-168Накладка1
6-Болт М8-6g×30.88.35.0198
7-Шайба 8Т 65Г 098
864-08-412Опора2
9-Болт М10-6g×45.58.0198
10700-40-9177Амортизатор8
1150-08-149Накладка4
1218-26-538Втулка8
1364-08-381Пластина стопорная4
143013Гайка2
15-Шайба 16 ОТ 65Г 092
1664-08-388Накладка2
17700-40-9292Амортизатор4
1864-08-265СПНакладка2
19-
50К-1013010-03
Радиатор масляный БР Т10-1013010
Радиатор (масляный)
1 1, 2 2
2050К-1013010Радиатор (масляный)1 1, «-»
21-Болт М10-6g×30.58.0198 1, 6 2
22-Шайба 10 ОТ 65Г 099 1, 7 2
233197Шайба9 1, 7 2
24700-40-8118-01Уплотнение2 1, 1 2
2550-08-135СПКрышка2 1, 1 2
2664-08-270СПРадиатор с рамой1
2764-08-274СПКрышка1
2864-08-290-01Палец1
29-Шплинт 3,2×22.0192
3064-08-273СПКронштейн1
3164-08-427Проушина1
3264-08-290Палец1
3364-08-291Раскос1
3424-08-154Тарелка2
3524-08-157Втулка1
36700-40-4428Втулка2
37-Гайка М18×1,5-7Н.6.0193
38-Шайба 18 ОТ 65Г 091
39700-46-2041
700-46-2041-01
Рукав1
4037-26-139СП
-
Хомут
Хомут червячный 50-70/12 W2 3
2
41-Болт М12-6g×30.58.0194
42-Шайба 12 ОТ 65Г 094
433135-1Шайба4
4450-26-485-10СПРукав 161
4550-26-485-08СПРукав 161
46-Гайка М10-7Н.6.0191
47700-40-3503Рукав2
48700-41-2222СП
-
Хомут
Хомут червячный 70-90/12 W2 3
4
4950-08-52Патрубок1
5050-26-115Втулка1
5150-60-230Прижим1
5250-09-138СПКронштейн1
5364-08-412Опора2
54700-41-3306Болт полый2
5540910Кольцо4
5650-56-109СПУгольник2
57700-41-3412Штуцер2
58261164Кольцо2
1 Для трактора с механической трансмиссией.
2 Для трактора с гидромеханической трансмиссией.
3 Для экспорта
Установка радиаторов (для трактора с «прямым» потоком)